
Furutangen 75
Praktisk, romslig og tilrettelagt for flere generasjoner. Hytta har en funksjonell planløsning og et luftig hemsareal med god takhøyde.





Grunnplan

Hems

Praktisk, romslig og tilrettelagt for flere generasjoner. Hytta har en funksjonell planløsning og et luftig hemsareal med god takhøyde.





Grunnplan

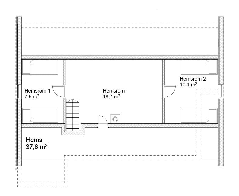
Hems
BRA:
74m²
Antall soverom:
4
Grunnplan:
Stue, kjøkken, 2 soverom, bad, gang, utvendig bod og terrasse
Hems / 2. etasje
Hemsstue og 2 soverom.
På Øysang selges hyttene nøkkelferdig på ferdig opparbeidet eiendomstomt. Denne hytta fås nøkkelferdig på de ulike tomte- kategoriene til prisene under. Omkostninger kommer i tillegg, som beskrevet ovenfor.
3 540 000,-
3 740 000,-
3 940 000,-
På Øysang selges hyttene nøkkelferdig på ferdig opparbeidet eiendomstomt.
I disse prisene inngår følgende:
Infrastruktur på feltet, eiendomstomt, prosjektering og utforming av byggesøknad, opparbeidelse av tomt, med parkering for to biler på eller rett ved siden av tomta, støping av grunnmursplate eller annen tilpasset fundamentering klar for bygging, nøkkelferdig hytte fra våre leverandører, syrefaste festemidler og fraktkostnader.
Dette kommer i tillegg:
Dokumentavgift på tomt, byggestrøm, renovasjon under bygging, støping av striper til terrasser ihht. original hyttetegning, byggesaksgebyr og anleggsbidrag for tilkobling til vann, avløp strøm og fiber. Totalt vil tilleggskostnadene beløpe seg til kr ca. kr 180.000 +/- 10 %, avhengig av hyttestørrelse og tomtepris.
Innvendig og utvendig overflatebehandling på hytter på Øysangkollen er ikke inkludert i ovennevnte, da dette er noe mange velger å utføre selv. På Øysang Vest / Vidsyn er overflatebehandling inkludert i prisen.
Spør oss gjerne om et nøkkelferdig tilbud for en komplett kostnadsoppstilling, med eller uten overflatebehandling inkludert.
Øysang Utvikling AS tar forbehold om at ikke alle hytter passer inn på alle tomter, samt trykkfeil og prisendringer fra våre leverandører og/eller myndigheter.
Alle bilder er illustrasjonsbilder og Øysang Utvikling tar forbehold om feil i bilder og plantegninger. For nøyaktig informasjon om hyttene, se leverandørens hjemmeside.
