
Frøya 75
Frøya 75 har til tross for den kompakte størrelsen alt man kan ønske seg av en moderne hytte. Med den velfungerende planløsningen og takhøyden i stua som gir en luftig romfølelse gir Frøya 75 valuta for pengene.



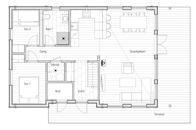
Grunnplan

Hems

Frøya 75 har til tross for den kompakte størrelsen alt man kan ønske seg av en moderne hytte. Med den velfungerende planløsningen og takhøyden i stua som gir en luftig romfølelse gir Frøya 75 valuta for pengene.



Grunnplan

Hems
BRA:
73m²
Antall soverom:
4
Grunnplan:
Stue, kjøkken, 2 soverom, bad, entre, bod/teknisk rom og utvendig bod.
Hems / 2. etasje
Hemsstue, soverom og kott
På Øysang selges hyttene nøkkelferdig på ferdig opparbeidet eiendomstomt. Denne hytta fås nøkkelferdig på de ulike tomte- kategoriene til prisene under. Omkostninger kommer i tillegg, som beskrevet ovenfor.
3 840 000,-
4 040 000,-
4 240 000,-
På Øysang selges hyttene nøkkelferdig på ferdig opparbeidet eiendomstomt.
I disse prisene inngår følgende:
Infrastruktur på feltet, eiendomstomt, prosjektering og utforming av byggesøknad, opparbeidelse av tomt, med parkering for to biler på eller rett ved siden av tomta, støping av grunnmursplate eller annen tilpasset fundamentering klar for bygging, nøkkelferdig hytte fra våre leverandører, syrefaste festemidler og fraktkostnader.
Dette kommer i tillegg:
Dokumentavgift på tomt, byggestrøm, renovasjon under bygging, støping av striper til terrasser ihht. original hyttetegning, byggesaksgebyr og anleggsbidrag for tilkobling til vann, avløp strøm og fiber. Totalt vil tilleggskostnadene beløpe seg til kr ca. kr 180.000 +/- 10 %, avhengig av hyttestørrelse og tomtepris.
Innvendig og utvendig overflatebehandling på hytter på Øysangkollen er ikke inkludert i ovennevnte, da dette er noe mange velger å utføre selv. På Øysang Vest / Vidsyn er overflatebehandling inkludert i prisen.
Spør oss gjerne om et nøkkelferdig tilbud for en komplett kostnadsoppstilling, med eller uten overflatebehandling inkludert.
Øysang Utvikling AS tar forbehold om at ikke alle hytter passer inn på alle tomter, samt trykkfeil og prisendringer fra våre leverandører og/eller myndigheter.
Alle bilder er illustrasjonsbilder og Øysang Utvikling tar forbehold om feil i bilder og plantegninger. For nøyaktig informasjon om hyttene, se leverandørens hjemmeside.
