
Frøya 90
Frøya 90 har en åpen stue/kjøkkenløsning på ca 43 m2 som gir god plass når hele familien samles på hytta. Kjøkkenøya med sitteplasser skaper et sosialt samlingspunkt og gir en større arbeidsflate og mer oppbevaring.



Grunnplan

Hems

Frøya 90 har en åpen stue/kjøkkenløsning på ca 43 m2 som gir god plass når hele familien samles på hytta. Kjøkkenøya med sitteplasser skaper et sosialt samlingspunkt og gir en større arbeidsflate og mer oppbevaring.



Grunnplan

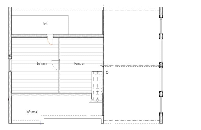
Hems
BRA:
85,1m²
Antall soverom:
4
Grunnplan:
Stue, kjøkken, 2 soverom, bad, ekstra wc, entre, teknisk rom og utvendig bod.
Hems / 2. etasje
Hemsstue, soverom og kott
På Øysang selges hyttene nøkkelferdig på ferdig opparbeidet eiendomstomt. Denne hytta fås nøkkelferdig på de ulike tomte- kategoriene til prisene under. Omkostninger kommer i tillegg, som beskrevet ovenfor.
4 090 000,-
4 290 000,-
4 490 000,-
På Øysang selges hyttene nøkkelferdig på ferdig opparbeidet eiendomstomt.
I disse prisene inngår følgende:
Infrastruktur på feltet, eiendomstomt, prosjektering og utforming av byggesøknad, opparbeidelse av tomt, med parkering for to biler på eller rett ved siden av tomta, støping av grunnmursplate eller annen tilpasset fundamentering klar for bygging, nøkkelferdig hytte fra våre leverandører, syrefaste festemidler og fraktkostnader.
Dette kommer i tillegg:
Dokumentavgift på tomt, byggestrøm, renovasjon under bygging, støping av striper til terrasser ihht. original hyttetegning, byggesaksgebyr og anleggsbidrag for tilkobling til vann, avløp strøm og fiber. Totalt vil tilleggskostnadene beløpe seg til kr ca. kr 180.000 +/- 10 %, avhengig av hyttestørrelse og tomtepris.
Innvendig og utvendig overflatebehandling på hytter på Øysangkollen er ikke inkludert i ovennevnte, da dette er noe mange velger å utføre selv. På Øysang Vest / Vidsyn er overflatebehandling inkludert i prisen.
Spør oss gjerne om et nøkkelferdig tilbud for en komplett kostnadsoppstilling, med eller uten overflatebehandling inkludert.
Øysang Utvikling AS tar forbehold om at ikke alle hytter passer inn på alle tomter, samt trykkfeil og prisendringer fra våre leverandører og/eller myndigheter.
Alle bilder er illustrasjonsbilder og Øysang Utvikling tar forbehold om feil i bilder og plantegninger. For nøyaktig informasjon om hyttene, se leverandørens hjemmeside.